Millwork drafting that keeps projects moving.

Ark Builds supports small residential, large commercial, and custom shops with clear drawing packages that reduce backlog and keep releases on track.

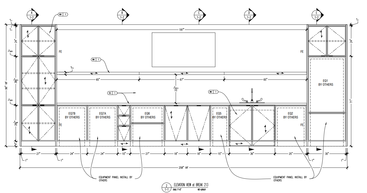
Production ready drawing packages Project based or ongoing support
The problem

When submittals fall behind, every later decision gets harder.

Projects slow down when details pile up before approval or release. Ark Builds is meant to relieve that pressure point early.

Estimating gets squeezed Backlog makes it harder to bid and detail at the same time.
Approvals take longer Unclear packages create extra questions and revision loops.
Service models

Use Ark Builds as drafting support that fits the way your team actually works.

Bring in support for one job or keep it steady across repeat work.

Dedicated support

Ongoing partner

Best when you need a reliable outside drafting resource that can stay aligned with your standards, workflow, and communication rhythm.

Consistent communication Repeatable standards Ideal for sustained volume
  • Supports recurring scope, repeat clients, and steady production volume
  • Keeps estimating, project management, and production working from the same drawing standard
  • Reduces the reset that comes with re explaining your process on every new job
Project support

Single project and overflow drafting

Best when one job, a release deadline, or a short term spike is putting more pressure on the team than your current drafting capacity can handle.

Quick engagement Defined deliverables Ideal for peaks and crunch periods
  • Useful for bids, approvals, submittals, and release preparation
  • Helps you take on work without waiting to hire
  • Works well for defined scopes with a tight timeline
Why teams use us

Built for the realities of custom millwork, not perfect conditions.

Focused on clarity, capacity, and cleaner handoff to production.

Cleaner production packages Drawing output that is easier to review, release, and build from.
Capacity without long hiring cycles Add support when backlog rises instead of waiting on hiring.
Better handoff to fabrication Resolve questions earlier so the shop can build with more confidence.
How it works

A clear four step process from files to final review.

Send the files, get scope back fast, approve the work, and review any in scope changes for 30 days.

1
Send over files and timeline Share the files you have, the project timeline, and any notes that help define the job.
2
Receive scope the same day Ark Builds reviews the information and sends back a same day scope so everyone is clear on what is being covered.
3
Approve and work starts Once the scope is approved, drafting starts and the work moves forward against the agreed deliverable.
4
30 day review process Changes that fall within the original scope can be reviewed for 30 days so final adjustments can be handled without restarting the job.
Start the conversation

Need drafting capacity without committing to another full time hire?

Tell Ark Builds what is backing up your team and what deliverable you need first.